Situé dans un immeuble intimiste avec seulement 8 lots et refait à neuf, l'appartement est à seulement 5 min du centre et à 10 min de la gare à pied.
Se trouvant face à l'hôpital de cavaillon et situé au 2eme étage, nous vous proposons à la location un appartement rénové et meublé de type 2 pièces ayant une superficie de 46,18m².
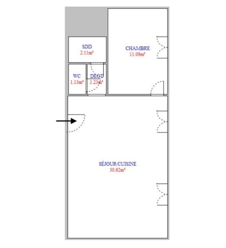
Le bien est doté d'un séjour/cuisine équipée plaques et hotte de 30,62m², d'une chambre de 11,09m² et d'une salle d'eau de 2,11 m² ainsi que d'un WC séparé.
L'appartement est équipé d'une climatisation réversible et dispose des dernières normes électriques.
Notre propriétaire a choisi la garantie des loyers impayés auprès d'un assureur. Pour la solvabilité de votre dossier, un montant minimum de 1750 euros de revenus sera demandé.
Pour déposer rapidement votre dossier en ligne, merci de vous connecter sur le lien suivant : https://public.storm-immobilier.fr/candidat ou le QR code en photo ou en vous connectant directement sur notre site Internet.
Surface habitable : 46.18 m² Loyer charges comprises : 655 € / mois Provisions charges : 30 € / mois Prix loyer hors charges : 625 € / mois Dépôt de garantie : 1250 € Honoraires charge locataire : 598 € TTC Dont honoraires état des lieux charge locataire : 138 € TTC Montant moyen estimé des dépenses annuelles d'énergie pour un usage standard, établi à partir des prix de l'énergie de l'année 2021 2022 2023 entre 480€ et 720€.
Les informations sur les risques auxquels ce bien est exposé sont disponibles sur le site Géorisques https://www.georisques.gouv.fr
Ce site utilise des cookies et vous donne le contrôle sur ceux que vous souhaitez activer. Vous avez le choix de les accepter ou de les refuser pour naviguer sur notre site internet.
Panneau des cookies
L'acception des cookies permettra la lecture et l'analyse des informations ainsi que le bon fonctionnement des technologies associées.
Facebook Connect Cookie Tiers. Ce cookie permet de collecter des informations relatives à la navigation et de se connecter via Facebook
Google Analytics Cookie de mesure d'audience. Ce cookie nous permet d'établir des statistiques de visite du site
Youtube Cookie Tiers. Ce cookie permet de collecter des informations relatives à la navigation et de se connecter via Youtube
BETB, BETB_ID, PHPSESSID Cookies obligatoires. Ces cookies sont nécessaires pour permettre le bon fonctionnement du site, ils sont automatiquement activés lorsque vous utilisez ce site